Baugebiet Nr. 43 - Sevelten, nördlich Nuttelner Straße II

Die Gemeinde Cappeln (Oldenburg) bietet ab sofort Baugrundstücke im Baugebiet Nr. 43 – Sevelten, nördlich Nuttelner Straße II an.

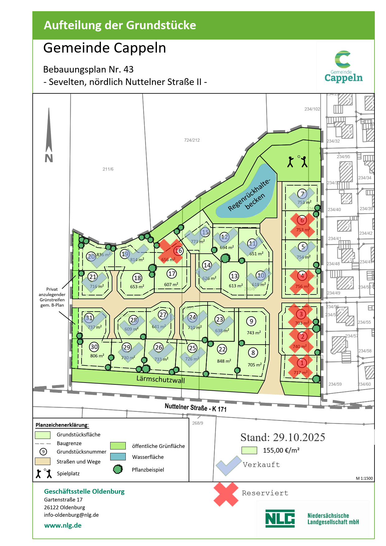
Der Kaufpreis beträgt 155,00 €/qm. Die Kosten für die Herstellung und Unterhaltung der Anlagen zur Beseitigung des Schmutzwassers sind im Kaufpreis nicht enthalten. Eine Veranlagung des Käufers folgt direkt durch den Oldenburgisch Ostfriesischen Wasserband (OOWV).

Auf dem Antrag können Sie angeben, welches Baugrundstück Sie erwerben möchten, falls Sie die vom Rat der Gemeinde Cappeln (Oldenburg) beschlossenen Vergabekriterien erfüllen. Es können bis zu 3 Wunschgrundstücke benannt werden. Sofern mehrere Bewerbungen auf ein Grundstück eingehen, erfolgt nach Abschluss des Bewerbungsverfahrens eine Zuteilung im Losverfahren.

Als „Bauplatzbewerber" wird vorzugsweise berücksichtigt, wer mind. 10 Jahre in der Bundesrepublik Deutschland wohnt und seit mind. 5 Jahren in der Gemeinde Cappeln seinen Wohnsitz angemeldet hat oder in der Gemeinde Cappeln mind. 5 Jahre einen Wohnsitz gehabt hat oder in der Gemeinde Cappeln einen Vollzeitarbeitsplatz nachweisen kann.
Grundstücksbewerber, die in den vergangenen 20 Jahren einen Bauplatz von der Gemeinde Cappeln erworben haben, können bei der Vergabe der Baugrundstücke nicht berücksichtigt werden. In Ausnahmefällen (z. B. plötzlicher Bedarf barrierefreien Wohnraums wegen Erkrankung) kann der Rat der Gemeinde Cappeln eine abweichende Einzelfallentscheidung treffen.

Diese Bauplatzvergaberichtlinien begründen keine Rechtsansprüche und haben keine Rechtswirkung nach außen. Ein Rechtsanspruch auf eine Bauplatzvergabe oder auf Erwerb eines bestimmten Grundstückes besteht nicht. Die Gemeinde Cappeln (Oldenburg) behält sich vor, in begründeten Fällen Ausnahmen und Abweichungen von diesen Richtlinien zuzulassen. Dies insbesondere, wenn von Seiten der Gemeinde ein besonderes Interesse besteht, den Antragsteller zu berücksichtigen, wenn weitere soziale Gesichtspunkte für den Antragsteller sprechen oder ein besonderer Bezug zur Gemeinde Cappeln (Oldenburg) besteht. Die endgültige Vergabe der Wohnbaugrundstücke erfolgt durch den Gemeinderat.

Vor Beratung des Kaufantrages in den politischen Gremien ist die Einzahlung einer Reservierungsgebühr in Höhe von 250 Euro erforderlich. Diese wird nach Abschluss des Kaufvertrages zurückerstattet.

B-Plan 43 - Sevelten, nördlich Nuttelner Straße II

Richtlinie für die Vergabe von Baugrundstücken

Antragsstellung für ein Baugrundstück im B-Plan 43 - Sevelten, nördlich Nuttelner Straße II

Vermarktungsplan

Antrag auf Erwerb eines Baugrundstückes

Bitte reichen Sie den Antrag ausgefüllt und unterschrieben bei der Gemeinde Cappeln ein.

 

 

 

© Foto Kowalski
Dieter Bührmann
04478/9484-31
Zimmer 13
Sabrina Abeln
04478/9484-37
Zimmer 17
powered by webEdition CMS